Villa singola in vendita

Avolasca, Frazione Montebello - Montebello
€ 165.000
6 locali 6 locali
177 Mq 177 Mq
2 bagni 2 bagni

Villa singola in vendita

Avolasca, Frazione Montebello - Montebello

Descrizione annuncio

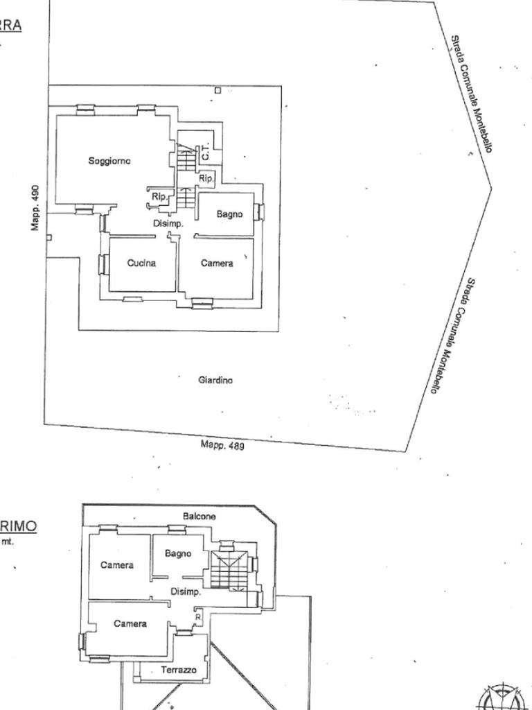
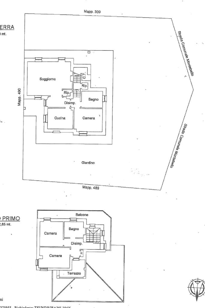
La villa, indipendente e libera sui quattro lati, si trova in posizione collinare ma comoda. Dal giardino, recintato e con accesso carraio tramite cancello elettrico, si accede al piano terra. Il soggiorno è doppio e luminoso, qui la porta finestra si affaccia sulla terrazza dotata di tende solari e con vista panoramica sulla Val Grue. La cucina è abitabile e arredata. Il bagno è ampio e con doccia, la camera matrimoniale su questo piano può essere trasformata anche in studio, il pratico ripostiglio è a mezza scala. Il primo piano è dedicato alla zona notte, due camere matrimoniali, un bagno, un ripostiglio. Dal disimpegno si accede al primo terrazzo coperto del piano e, da una delle due camere matrimoniali, al secondo terrazzo, con vista sui colli.

Il giardino è in piano, l'orto è terrazzato e una pratica scalinata porta ad altri eventuali posti auto di proprietà. Completano la proprietà due rustici con tetto nuovo ideali da crearvi locali deposito.

Mostra tutto

Nelle vicinanze

Ristoranti Ristoranti
La Capanna
590 m
La Vicchia Posta
2,9 Km
Mostra tutto

Caratteristiche

Rif.:
61144571
Piano:
2 di 2 (Piano su più livelli)
Posti auto:
3
Balconi:
1
Terrazzi:
2
Camere da letto:
3
Mostra tutto
Prezzo Prezzo
€ 165.000
Rata mutuo Rata mutuo
€ 771 / mese
Spese annue Spese annue
€ 0
Proponi il tuo prezzoProponi il tuo prezzo

Classe Energetica

E
E
E
E
E
E
E
E
E
EP globale non rinnovabile:
314.02 kW h/m² anno
EP globale rinnovabile:
151.00 kW h/m² anno
EP invernale del fabbricato:
EP estiva del fabbricato:
Anno di costruzione:
2007
Riscaldamento:
Autonomo
Tipo impianto:
A radiatori
Tipo alimentazione:
Metano

Ti interessa visionare l'immobile?

Fissa un appuntamento  Fissa un appuntamento

Richiedi informazioni

Clicca su Leggi per aprire l'informativa
* Questi campi sono obbligatori

Calcola il tuo mutuo

Semplice e senza impegno
Anticipo

( % )
Mutuo

( % )

pochi semplici passi

inserisci i tuoi dati
Questionario completato
Grazie per aver richiesto un appuntamento senza impegno con un nostro Consulente del Credito e Assicurativo.

Hai inserito correttamente tutti i dati necessari e a breve riceverai una e-mail con un link da convalidare per inviare i tuoi dati.
Affiliato
Studio Viguzzolo D.I.
Via I Maggio, 58 15058 Viguzzolo (AL)

Il nostro staff


  • Mino Melandro
    Affiliato

  • Giorgia Gotta
    Coordinatrice
Via I Maggio, 58 15058 Viguzzolo (AL)
Zona: Viguzzolo-Val Curone-Val Grue
Mostra su mappa
Orari: 8:30 - 13:00 15:00 - 20:00 e sabato fino alle 18:00
Affiliato
Studio Viguzzolo D.I.
Via I Maggio, 58 15058 Viguzzolo (AL)

2026 Tecnocasa Franchising S.p.A. - P. IVA 08365160152 - Via Monte Bianco 60/A 20089 Rozzano (MI). Ogni agenzia ha un proprio titolare ed è autonoma. Privacy policy | Policy utilizzo | Cookie policy